Rodinný dům Hodonín u Kunštátu, 154 m2, pozemek 846 m2
3.600.000,- Kč
REZERVOVÁNO
3.600.000,- Kč
REZERVOVÁNO
Nabízíme k prodeji rodinný dům v obci Hodonín u Kunštátu, vhodný pro rekreační i trvalé bydlení. Dům z roku 1979 má užitnou plochu 154 m² včetně garáže o výměře 15 m² a je napojen na obecní vodovod i kanalizaci. Vytápění a ohřev teplé vody zajišťuje plynový kotel.
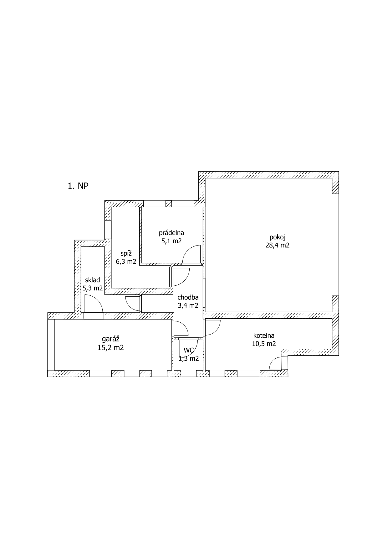
Dispozice 1. nadzemního podlaží zahrnuje sklad, garáž, chodbu, samostatné WC, kotelnu, prádelnu a velký obytný pokoj s krbem a francouzským oknem se vstupem na zahradu. Ve 2. nadzemním podlaží se nachází zádveří, předsíň, šatna, koupelna s WC, ložnice a obývací pokoj s kuchyňským koutem a vstupem na prostornou terasu s krbem a výhledem do zahrady; součástí je také balkon.
Stav domu je převážně původní, spodní část stavby je zděná a horní podlaží tvoří dřevostavba. Terasa domu je nově izolována. Střešní krytina i oplechování jsou v dobrém technickém stavu. Na pozemku je udržovaná zahrada, která poskytuje soukromí a klidné zázemí.
Lokalita v Jihomoravském kraji, mezi Blanskem a Novým Městem na Moravě a severně od Brna, nabízí kvalitní zázemí pro odpočinek i celoroční pobyt. V obci se nachází zimní středisko SKI Areál Hodonín s možností lyžování, okolí tvoří rozmanitá příroda vhodná pro pěší turistiku a cyklistiku. Tiché prostředí, dobrá dostupnost do blízkých měst a pestré volnočasové možnosti dělají z této nemovitosti zajímavou příležitost pro zájemce, kteří hledají dům s potenciálem modernizace ve vyhledávané rekreační oblasti.
Pro více informací či sjednání prohlídky nás prosím kontaktujte.

Vítejte na stránkách naší realitní kanceláře!
Jsme Marek Kotík a Helena Pinďáková – dva realitní makléři, kteří spojují profesionalitu, zkušenosti a osobní přístup. Naší vášní je pomáhat lidem najít ideální domov nebo skvělou investiční příležitost.
Zakládáme si na transparentní komunikaci, důvěře a individuálním přístupu ke každému klientovi. Ať už nemovitost prodáváte, kupujete nebo hledáte pronájem, postaráme se o hladký průběh celého procesu.
Společně proměníme vaše představy ve skutečnost.
Těšíme se na spolupráci.
Ing. Marek Kotík & Bc. Helena Pinďáková